廢漿處理
泥漿系統
固控設備
聯系冠能固控
銷售部電話:0316-5276968 0316-5276970
全國免費熱線:4006315909
sales@gngukong.com
中國總部地址:河北省廊坊市大廠潮白河工業區工業三路
液氣分離器和真空除氣器等準備發往泰國 |
|
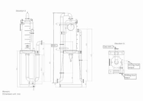
我公司再次接到泰國客戶重復下的訂單,這次客戶購買我公司真空除氣器,液氣分離器,離心泵和泥漿攪拌器等,之前我公司與泰國的客戶已有合作,我公司生產優等的產品質量,深受客人喜愛。此次客戶對液氣分離器有特俗的一些要求,經過我公司的技術人員和客戶那邊的溝通, 終給客戶確定下來一個滿意的方案。
?液氣分離器的具體技術參數: 型號l: ZYQ900
? |

English




冀公網安備 13102802000373號